| 物件番号 | 26020049m |
|---|---|
| 所在地 | 東京都清瀬市 清瀬駅徒歩6分 |
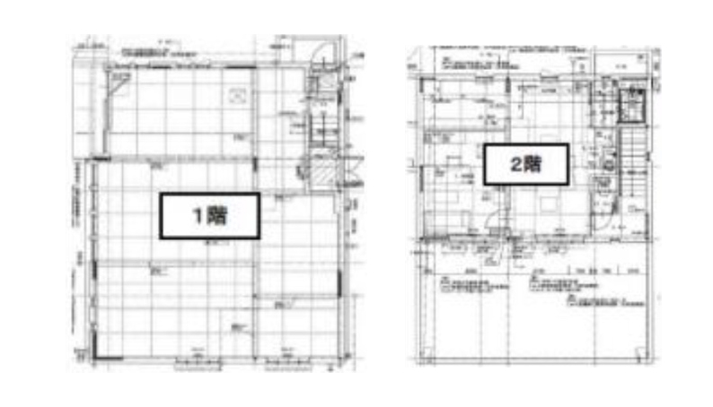
| 広さ | 1階 約24坪、2階 約14坪、合計 約38坪 |
| 賃料 | 月額44.00万円(税込) |
| 備考 |

歯科医院開業の無料相談!
- ? 開業資金をどうすれば良いかわからない
- ? 内外装工事や診療機器の見積りを知りたい
- ? 何をどうすれば良いか教えてほしい
開業地のご紹介、融資、事業計画、開業スケジュール、
各種、機械等のコンペ設定など、無料にてご相談承ります。
詳細情報はサイトの会員に限定されています。
新規ユーザー登録は以下から無料登録できます。
すでに会員の場合は、ログインしてください。
会員登録された方には、
担当エージェントがついてサポートいたします。
診療圏調査レポートもプレゼント中!

