東京都豊島区 ビル1階

物件番号 26030005m
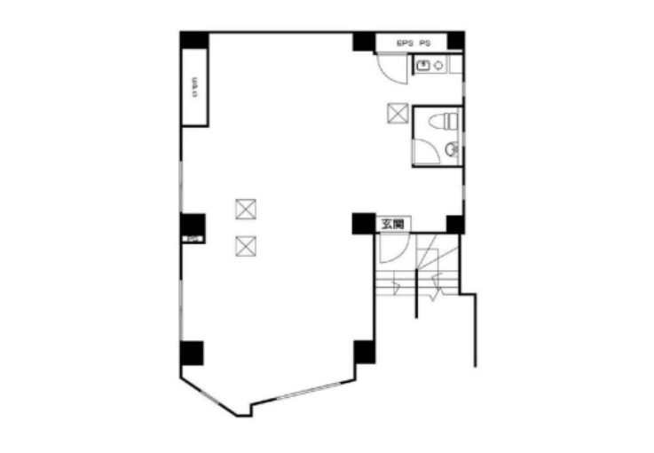
所在地 東京都豊島区 池袋駅徒歩5分
広さ 約22.63坪
賃料 月額33.7905万円(税込)
東京都豊島区 池袋駅徒歩5分 美類1階物件図面
歯科医院開業の無料相談!
  • 開業資金をどうすれば良いかわからない
  • 内外装工事や診療機器の見積りを知りたい
  • 何をどうすれば良いか教えてほしい

開業地のご紹介、融資、事業計画、開業スケジュール、
各種、機械等のコンペ設定など、無料にてご相談承ります。

詳細情報はサイトの会員に限定されています。
新規ユーザー登録は以下から無料登録できます。
すでに会員の場合は、ログインしてください。

会員登録された方には、
担当エージェントがついてサポートいたします。
診療圏調査レポートもプレゼント中!

診療圏調査レポートもプレゼント中!

新規ユーザー登録
*必須項目